ディテールホームグループが手掛ける、洗練された2階建てモデルハウスをじっくりご案内する特別な見学会を開催します。
吹き抜けや勾配天井、プライベートテラス、回遊動線など、暮らしを豊かにするデザインを実際の空間で体感できるチャンス。
建築士やコーディネーターがこだわったデザインのポイントをご紹介しながら、家づくりに役立つアイデアをお届けします。
“普通の家では物足りない”方にこそ見ていただきたい、上質な住まいの世界をご一緒に巡りませんか?
今回ご案内するのは、三条市石上のモデルハウス「上質な家具と紡ぐ、周辺環境を選ばないカーテンレスな暮らし」。
大開口の窓からテラスへ視線が抜け、家の中にいながら外の開放感を楽しめる設計。
カーテンに頼らずプライバシーを守れる工夫があり、上質な家具と調和した大人の暮らしを体感いただけます。
ぜひご見学ください。
※当モデルハウスは、2階建てになります。
・延床面積:32.9坪
・敷地面積:66.2坪
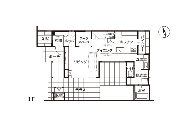
【間取り】

【見学会でよく相談される内容例】
・お金のこと
・土地選びのこと
・間取りのこと
・デザインのこと
・良質な素材と性能のこと
・新潟の気候や風土にあった設計のこと
見学会は予約制となります。
ご来場の際は事前にご予約いただきますよう、よろしくお願い申し上げます。




























